作为业内公认的「诗词歌赋有限公司」,这一次,他为我们带来的是又一个充满诗情画意的名字。
事实上,这个很绿城的案名,也很容易让人联想到绿城的另一个现象级红盘,位于杭州的江河鸣翠。
即便总价高达1100万起步,仍吸引7635组家庭报名,中签率低至5.65%,不仅成为杭州首批限售红盘,至今都是难以逾越的高峰。

所以,完全可以期待,与杭州江河鸣翠一脉相承的滨河鸣翠府,他所带来的意义,将超越诗情画意的楼盘案名本身。

我们都知道,绿城是一位刻画意境的高手,每一部城心大作,都能将当地文化和美学的意境融入自己的项目之中。
所以,当滨河鸣翠府遇见南湖,在这片土地上,诞生的将是一座足以代言二环主城新高度的城市封面。

得益于体量大,滨河鸣翠府得以施展绿城一整套绝学,安庆站发布,将品质的细腻与气场的强大,融于住区之中。
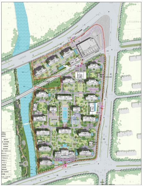
别的不说,绿城极简美学的外立面、经典的中轴对称以及中央大花园、蔚蓝无边泳池自然不会缺席。
与此同时,南地块摒弃了常见的高低配,排布了18幢清一色高层,整体呈围合式布局。
相比兵营式的排布,围合式的布局得以施展开更朗阔的楼间距和更舒适的空间尺度。

嘉兴人自古喜爱临水而居,一座大都市拥抱中的滨河景观住区,自然是难得一见。
更令人惊喜的是,在滨河鸣翠府身上,我们也将看到绿城「社区芯空间」在嘉兴的首次落地。
芯空间,就是通过打造社区—组团—单元楼的多层次、全体系的生活服务空间,一站式解决业主多种使用场景。

未来居住在滨河鸣翠府,你可以提前点好一杯咖啡送到外卖存放点,再叫好网约车,安庆站发布,从单元楼下来取咖啡、上车,一气呵成,全程实现一条「无雨化」的动线。
如今,伴随着滨河鸣翠府案名的正式发布,这座距离南湖仅2公里的「灯塔旗舰大盘」走上红毯的脚步也更近了。